Cửa Kính Cường Lực

Hiệp Phát Window chuyên cung cấp thi công các loại cửa kính cường lực giá tốt bao gồm

  • Cửa kính bản lề sản.
  • Cửa kính trượt lùa: Hệ lùa phi 25, lùa inox 10×30, lùa ray nhôm
  • Cửa kính xếp trượt.
  • Cửa kính tự động, bán tự động.

Mời quý khách hàng tham khảo các mẫu cửa kính cường lực đẹp đã lắp đặt bên dưới, kèm báo giá hiện đang có ưu đãi thi công giá tốt tại Hiệp Phát Window.

TƯ VẤN & BÁO GIÁ: 0931 458 165

Kiến trúc hiện đại ngày nay không chỉ chú trọng đến tính thẩm mỹ mà còn quan tâm đến an toàn và tiện ích. Trong nhiều trường hợp, cửa kính cường lực đã trở thành một phần không thể thiếu của các công trình xây dựng. Đây là một loại cửa được làm từ kính cường lực đã được mài, khoan lỗ, khoét góc kết hợp với những phụ kiện kèm theo như tay nắm, bản lề sàn, khóa, kẹp… Sản phẩm có độ bền cao, an toàn và có tính thẩm mỹ cao nên ngày càng được sử dụng rộng rãi trong mọi công trình xây dựng như: văn phòng, sảnh tòa nhà, cửa hàng, showroom, nhà riêng…

Mẫu cửa kính lùa khung nhôm hiện đại

ƯU ĐIỂM CỦA CỬA KÍNH CƯỜNG LỰC

– Cửa kính cường lực với khả năng chịu lực tốt, chống va đập mạnh từ yếu tố tự nhiên hay con người.

– Bề mặt kính trong suốt nên dễ dàng thu hút ánh sáng tự nhiên, tiết kiệm điện năng đáng kể.

– Chống nhiệt tốt, chịu được sự chênh lệch hai bên cửa là  60 độ C. Không làm nhiệt độ bên trong phòng bị ảnh hưởng bởi bên ngoài.

– Cửa kính được kết hợp cùng phụ kiện là gioăng cao su nên đảm bảo sự kín khít, không có khe hở. Khi đóng mở cửa đảm bảo sự êm ái, đồng thời cũng giúp cho tiếng ồn, nước, côn trùng không thể xâm nhập vào bên trong.

– Lắp đặt cửa kính cường lực rất dễ làm vệ sinh, lau chùi, ít hư hỏng nên cũng tiết kiệm được chi phí sửa chữa.

CẤU TẠO CHI TIẾT CỦA CỬA KÍNH CƯỜNG LỰC

Sản phẩm cửa kính cường lực có cấu tạo kỹ thuật rất đơn giản, cụ thể bao gồm 03 thành phần sau:

  • Kính cường lực: Thường sử dụng kính có độ dày 10mm hoặc 12mm, 15mm với các bộ cửa có kích thước lớn.
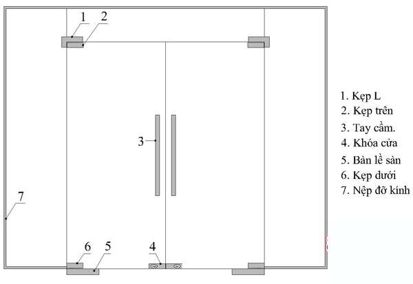
  • Phụ kiện: Về phụ kiện dạng cửa kính cường lực mở quay có các chi tiết tay nắm, bản lề sàn, kẹp kính, khóa, kẹp chữ L, kẹp chống rung. Về hãng phụ kiện chính hãng có VVP, Hafele, Adler, Newstar…
  • Hệ khung cố định kính: Đối với cửa dạng cửa thường thường sử dụng khung nẹp nhôm để cố định kính. Ngoài ra còn có thể sử dụng khung nhôm hệ, khung sắt, khung gỗ, khung inox để cố định kính. Chi tiết được Huỳnh Đạt phân loại thành hệ cửa riêng biệt trong phần bên dưới.
Cấu tạo cửa kính cường lực mở quay
Phụ kiện cửa kính cường lực

PHÂN LOẠI CỬA KÍNH CƯỜNG LỰC

Để phân loại cửa cường lực, thông thường người ta sẽ dựa vào các yếu tố như độ dày, tính đặc thù nguyên lý hoạt động khi sử dụng hay màu sắc…. Bạn có thể theo dõi các loại cửa cường lực chi tiết với thông tin dưới đây.

Phân loại theo độ dày

Nếu phân loại theo độ dày, hiện tại cửa kính cường lực được chia làm các loại khác nhau từ phổ thông đến cao cấp với độ dày từ 6mm đến 11mm.

  • Dòng cửa kính cường lực phổ thông với độ dày từ 6mm đến 10mm
  • Dòng cửa kính cướng lực dán với độ dày từ 6mm đến 11mm
  • Dòng cửa kính cường lực cao cấp và thông dụng nhất hiện nay với độ dày từ 8mm đến 11mm

Phân loại theo nguyên lý hoạt động

Với nguyên lý hoạt động thì cửa kính cường lực được phân thành nhiều loại khác nhau. Mỗi loại cửa có thiết kế cũng như cách hoạt động khác nhau khi lắp đặt vào công trình thực tế. Hiện có 2 loại cửa kính cường lực chính khi phân theo nguyên lý hoạt động đó chính là cửa cường lực lùa treo cửa cường lực bản lề sàn:

  1. Cửa cường lực lùa treo hoạt động với nguyên lý mở trượt sang hai bên, loại cửa này có ưu điểm là tiết kiệm diện tích tối đa và linh hoạt khi đóng mở.
  2. Cửa cường lực bản lề sàn được ứng dụng khá phổ biến và hoạt động theo nguyên lý đóng mở như cửa truyền thống. Ưu điểm của loại cửa này là tạo vẻ ngoài sang trọng, cách âm, cách nhiệt tốt.

 

Mẫu cửa kính cường lực mở lùa 2 cánh sang trọng

Phân loại cửa kính cường lực theo cấu tạo sản phẩm

Kiểu phân chia loại cửa kính cường lực thứ ba chính là chia theo cấu tạo sản phẩm. Thường người ta sẽ phân loại dựa trên thành phầm cấu tạo nên cửa như khung gỗ, khung nhôm hay cửa kính cường lực hoàn toàn.

  • Cửa kính cường lực khung gỗ: Là loại cửa được cấu tạo từ các tấm kính cường lực với độ dày khác nhau kết hợp với khung gỗ, Gỗ dùng kết hợp với kính cường lực thường là những loại cao cấp như lim, sến…
  • Cửa kính cường lực khung nhôm: Đây là loại cửa được ứng dụng khá phổ biến vì giá thành rẻ, độ bền cao mẫu mã lại đẹp mắt, đa dạng. Thông thường loại cửa này được cấu tạo từ kính cường lực và nhôm xingfa chất lượng cao.
  • Cửa cường lực 100%: Đây là loại cửa được sản xuất với cấu tạo gồm 100% là kính cường lực kết hợp với các hệ phụ kiện bằng inox không han gỉ. Loại cửa này mang đến cho công trình vẻ ngoài sáng bóng và độ bền cực kỳ cao.
Cửa kính cường lực khung nhôm Xingfa

BẢNG GIÁ THI CÔNG CỬA KÍNH CƯỜNG LỰC

Nhôm Kính Hiệp Phát là đơn vị chuyên cung cấp cửa kính cường lực các loại. Dịch vụ uy tín, nhiều loại cửa kính với chất lượng sản phẩm tốt nhất, báo giá gốc tại xưởng.

STTSản phẩm kính cường lực và phụ kiệnĐVTĐơn giá
ABáo giá kính cường lực, kính Temper
1Kính cường lực 8 ly (mm)M2550.000
2Kính cường lực 10 ly (mm)M2600.000
3Kính cường lực 12 ly (mm)M2750.000
4Kính cường lực 15 ly (mm)M21.350.000
5Kính cường lực 19 ly (mm)M21.950.000
BBáo giá phụ kiện cửa kính cường lực mở quay
1Bản lề sànCái1.150.000
2Kẹp vuông trên, dướiCái300.000
4Kẹp chữ LCái450.000
5Kẹp tyCái350.000
6Tay nắm inoxCái400.000
7Tay nắm đá, thủy tinhCái500.000
8Khóa sànCái450.000
CBáo giá phụ kiện cửa kính cường lực mở trượt
1Bánh xe lùaCái700.000
2Tay nắm âmCái250.000
3Khóa bán nguyệt đơnCái350.000
4Khóa bán nguyệt képCái450.000
5Ray cửa lùaMd250.000

Ghi chú:

  • Giá trên chưa bao gồm thuế VAT 10%
  • Giá trên đã bao gồm công lắp đặt và vận chuyển tại TP.HCM
  • Sản phẩm thiết kế báo giá căn cứ vào bản vẽ chi tiết hồ sơ thiết kế
  • Tất cả sản phẩm bảo hành 12 tháng

Để ước lượng chi phí tổng thể cho 1 bộ cửa kính có thể sử dụng công thức sau

Giá 1 bộ cửa kính = Đơn giá kính x Tổng số m2 kính + Phụ kiện cửa

Trong đó:

  • Cửa 1 cánh là sử dụng 1 bộ phụ kiện cửa, cửa 2 cánh là sử dụng 2 bộ.
  • Đối với các bộ cửa có diện tích lớn, cần lắp đặt tấm kính khổ lớn thì giá sẽ tăng thêm do điều kiện thi công & tải trọng phức tạp hơn.

Để có những dự toán chính xác nhất về chi phí trước khi thi công, quý khách hàng hãy liên hệ ngay với Hiệp Phát Window, gửi bản vẽ và chi tiết kích thước các loại cửa kính cần lắp đặt. Đội ngũ nhân viên tư vấn của chúng tôi sẽ dựa trên các kích thước này để tính toán ra chi phí hợp lý nhất.

QUY TRÌNH THI CÔNG TẠI HIỆP PHÁT WINDOW

Bước 1: Nhân viên của Hiệp Phát Window sẽ đến tận nơi để khảo sát công trình và vị trí cần lắp đặt cửa để qua đó lựa chọn một sản phẩm có mẫu mã, kích thước phù hợp.

Bước 2: Sau khi bàn bạc, thống nhất với khách hàng sẽ đưa ra lựa chọn phương án thi công đảm bảo tối ưu về thời gian, chi phí cũng như hiệu quả mang lại.

Bước 3: Thực hiện bản vẽ cửa chi tiết để khách hàng xem, đồng thời cũng lên báo giá.

Bước 4: Xác định kích thước, vị trí cần lắp đặt cửa kính cường lực, chọn độ dày và màu sắc kính phù hợp theo nhu cầu, mong muốn của khách hàng. Đồng thời chúng tôi tư vấn khách hàng lựa chọn loại cửa có độ dày 8mm, 12mm,… tùy theo yêu cầu

Bước 5: Thực hiện việc kẹp trên, kẹp dưới, cố định kính cường lực để đảm bảo không xuất hiện các khe hở giữa tấm kính. Tiếp sau đó mới lắp đặt khung, tùy theo từng trường hợp mà nó là loại khung nhôm hay khung inox.

Bước 6: Sau khi lắp đặt cửa kính cường lực theo kích thước đã được đo đạc chuẩn thì chúng tôi sẽ tiến hành kiểm tra các phụ kiện, đảm bảo cửa đúng kỹ thuật, đóng mở cửa hay các bộ phận đã được ôm khít toàn bộ chưa, nếu chưa thì khắc phục ngay.

Bước 7: Bàn giao nghiệm thu công trình với khách hàng, hướng dẫn vệ sinh và sử dụng đúng chuẩn. Trong quá trình khách hàng sử dụng nếu có vấn đề gì cũng sẽ được bảo hành đầy đủ.

HIỆP PHÁT WINDOW – ĐƠN VỊ THI CÔNG CỬA KÍNH CƯỜNG LỰC CHUYÊN NGHIỆP

Hiệp Phát Window là đơn vị chuyên thi công lắp đặt cửa kính cường lực chuyên nghiệp, sản phẩm chúng tôi cung cấp luôn làm hài lòng khách hàng với giá thành rẻ, thi công nhanh, phụ kiện chính hãng, tư vấn nhiệt tình, tận tâm với công việc, phục vụ 24h, bảo hành bảo trì dài hạn.

  • Tư vấn hoàn toàn miễn phí và đúng theo nhu cầu của bạn
  • Báo giá nhanh gọn theo cách mà bạn muốn
  • Khảo sát và báo giá nhanh chóng không để bạn phải chờ đợi
  • Trực tiếp thi công và lắp đặt sản phẩm, không qua trung gian nào khác
  • Kỹ thuật lắp đặt có tay nghề, chuyên môn cao
  • Miễn phí hoàn toàn chi phí vận chuyển tại TP.HCM
  • Phụ kiện chính hãng, nhập khẩu, bảo hành dài hạn
  • Ở đâu giá rẻ, chúng tôi còn rẻ hơn

TỔNG HỢP CÁC MẪU CỬA KÍNH ĐẸP ĐÃ THI CÔNG

Dưới đây là tổng hợp một số mẫu cửa kính cường lực đẹp mà Hiệp Phát Window đã lắp đặt hoàn thiện trong các công trình mà đơn vị chúng tôi tổng thầu. Kính mời quý khách hàng tham khảo.

CHẤT LƯỢNG HÀNG ĐẦU

Sản phẩm chất lượng cao

Đội ngũ thợ nhiều năm kinh nghiệm

Thi công chuyên nghiệp, nhanh chóng

Bảo hành sản phẩm uy tín, gọi là có